Descrizione

T185 TRILOCALE situato al piano primo a Viserba in zona verde e a soli 5 minuti in bicicletta dalla spiaggia raggiungibile attraverso una comoda pista ciclabile.
Inserito al terzo piano di condominio in costruzione con ottime finiture e alte prestazioni energetiche è la soluzione perfetta per chi desidera una casa pratica vicino al mare.
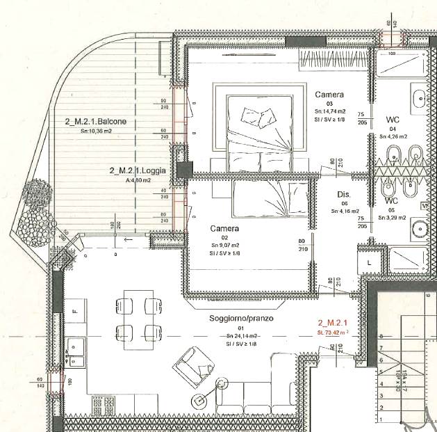
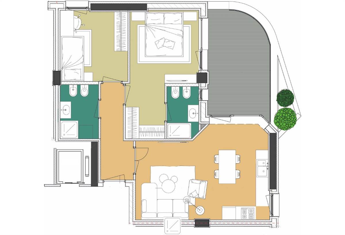
Lo spazio abitativo si caratterizza per lo spazioso soggiorno di 25 mq, una camera singola ed una camera matrimoniale perfette per il comfort quotidiano, un disimpegno e due bagni.
Come spazio esterno offre un balcone in parte loggiato di circa 15 mq in parte loggiato accessibile dalla zona giorno e dalle due camere perfetto per cene all’aperto e momenti di relax.
Disponibili garage o posti auto.

A pochi passi dalla spiaggia di Viserba, questa casa permette di vivere appieno l’atmosfera della costa romagnola. La zona è servita da negozi, ristoranti e mezzi pubblici, rendendo l’attico ideale sia come residenza principale che come casa vacanze.

Grazie alla classe energetica A, l’appartamento combina comfort e sostenibilità, con tecnologie all’avanguardia che assicurano un ambiente piacevole in ogni stagione.



CONSEGNA SECONDO SEMESTRE 2027
**La posizione indicata e la via sono puramente indicative. L'indirizzo esatto sarà fornito previo colloquio in agenzia.
**Le presenti informazioni non costituiscono elemento contrattuale.


Caratteristiche principali

Stato Immobile
Prossima Realizzazione
Grado
Signorile
Posizione
Mare
Panorama
Vista Aperta
Tipo Soggiorno
Soggiorno
Tipo Cucina
A Vista
Riscaldamento
Tele Riscaldamento
Tipo Riscaldam.
Pompa di Calore
Tipo Impianto
Pavimento
Fonte Energetica
Fotovoltaico
Acqua Calda
Autonoma
Raffrescamento
Split
Infissi
PVC Triplo Vetro
Accessori: Aria Condizionata, Ascensore, Bagno Handicap, Cancello Elettrico, Impianto Fotovoltaico, Passaggio Automobilistico, Passaggio Pedonale, Porta Blindata, Tapparelle Elettriche, Tripli Vetri, Video Citofono

Mappa

via sacco e vanzetti , Rimini (RN)

Cookie preference