In Vendita

Ampio Appartamento con garage e cantina a Cerasolo

Coriano - via giacomo leopardi
Codice: Q130
250.000 €
130 m²
Superficie
4
Locali
3
Camere
2
Bagni
1
Box auto
Descrizione
**Appartamento Quadrilocale su Due Livelli in Vendita**
RIF. QU340B
Scopri questo splendido appartamento quadrilocale disposto su due livelli, situato al secondo e terzo piano di una piccola palazzina. Con una classe energetica A, questa proprietà è un esempio perfetto di efficienza energetica e comfort moderno. La zona giorno openspace con living e cucina a vista è ideale per chi ama gli spazi aperti e luminosi, mentre i balconi offrono una vista mozzafiato sulle colline circostanti.
Il camino nella zona TV aggiunge un tocco di calore e accoglienza, perfetto per le serate invernali. L'appartamento dispone di due camere matrimoniali, una camera singola e due bagni finestrati con box doccia, garantendo spazio e privacy per tutta la famiglia. La zona lavanderia e il secondo piano mansardato offrono ulteriore funzionalità.
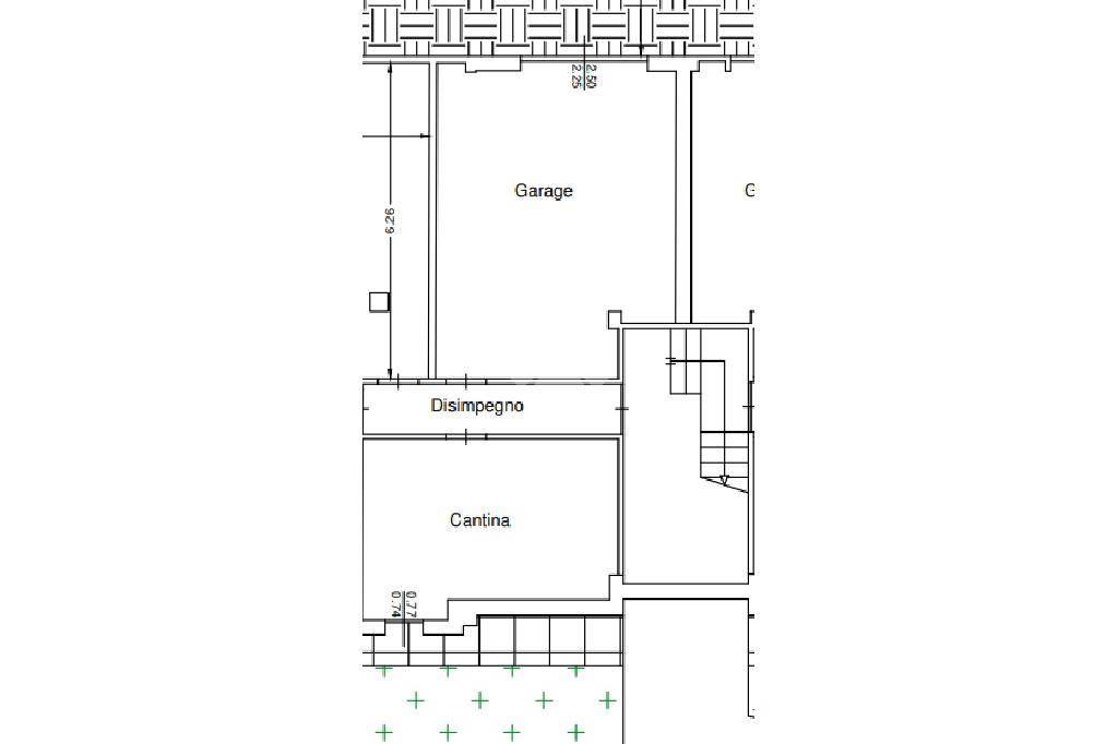
Completano la proprietà un garage doppio e una cantina al piano terra, con attacchi per lavatrice sia nel garage che in mansarda. Gli infissi in PVC nuovi, la pompa di calore ibrida, il fotovoltaico con batterie di accumulo da 10 KW e il termocappotto assicurano bassissime spese condominiali. Arredato con gusto, questo appartamento è ideale per chi cerca ampi spazi abitabili senza rinunciare alla sostenibilità. Non perdere l'opportunità di vivere in una casa che combina eleganza e innovazione!

La posizione indicata e la via sono puramente indicative. L'indirizzo esatto sarà fornito previo colloquio in agenzia.
Le presenti informazioni non costituiscono elemento contrattuale
Caratteristiche
Codice:
Q130
Città:
Coriano
Categoria:
Appartamento
Spese condominiali:
150 € / anno
Locali:
4
Camere:
3
Bagni:
2
Mq:
130
Mq calpestabili:
110
Box auto:
1
Mq Box:
30
Piano:
2
Anno:
1985
Anno ristrutturazione:
2022
Classe energetica:
A+
Stato Immobile:
Buono
Grado:
Signorile
Posizione:
Collina
Tipo Soggiorno:
Soggiorno
Tipo Cucina:
A Vista
Riscaldamento:
Autonomo
Tipo Riscaldam.:
Pompa di Calore
Tipo Impianto:
Radiatori
Fonte Energetica:
Fotovoltaico
Infissi:
PVC Triplo Vetro
Accessori
Aria Condizionata
Camino
Canna fumaria
Cancello Elettrico
Doppi Vetri
ImpiantoFotovoltaico
Lavanderia
Parco Condominiale
Passaggio Automobilistico
Passaggio Pedonale
Porta Blindata
Ripostiglio
Tende da sole
Zanzariere
Mappa
Coriano - via giacomo leopardi
Attiva i cookies e ricarica la pagina per visualizzare il contenuto
Cookie preference