In Vendita

Nuovo appartamento trilocale

Rimini (Viserba) - via sacco e vanzetti
Codice: T185
278.000 €
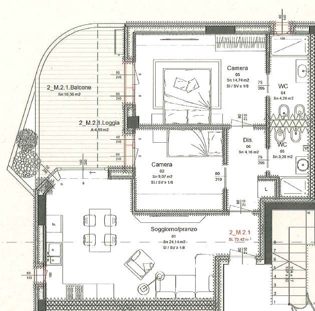
73,09 m²
Superficie
3
Locali
2
Camere
2
Bagni
Descrizione
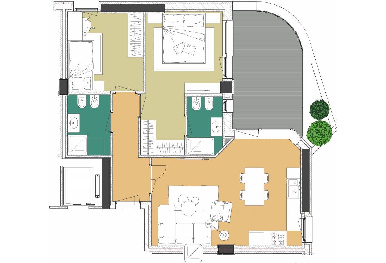
T185 TRILOCALE situato al piano primo a Viserba in zona verde e a soli 5 minuti in bicicletta dalla spiaggia raggiungibile attraverso una comoda pista ciclabile.
Inserito al terzo piano di condominio in costruzione con ottime finiture e alte prestazioni energetiche è la soluzione perfetta per chi desidera una casa pratica vicino al mare.
Lo spazio abitativo si caratterizza per lo spazioso soggiorno di 25 mq, una camera singola ed una camera matrimoniale perfette per il comfort quotidiano, un disimpegno e due bagni.
Come spazio esterno offre un balcone in parte loggiato di circa 15 mq in parte loggiato accessibile dalla zona giorno e dalle due camere perfetto per cene all’aperto e momenti di relax.
Disponibili garage o posti auto.

A pochi passi dalla spiaggia di Viserba, questa casa permette di vivere appieno l’atmosfera della costa romagnola. La zona è servita da negozi, ristoranti e mezzi pubblici, rendendo l’attico ideale sia come residenza principale che come casa vacanze.

A livello di impiantistica l'appartamento offre:
- riscaldamento a pavimento
- impianto fotovoltaico di 1kWp per unità
- VMC
- predisposizione per aria condizionata
- predisposizione per impianto d’allarme
- videocitofono
- predisposizione per ricarica auto elettrica in garage

Finiture da capitolato
- rubinetterie e sanitari Ideal Standard
- pavimenti in gres porcellanato a scelta
- infissi in PVC con anta ribalta

Grazie alla classe energetica A, l’appartamento combina comfort e sostenibilità, con tecnologie all’avanguardia che assicurano un ambiente piacevole in ogni stagione.



CONSEGNA SECONDO SEMESTRE 2027
**La posizione indicata e la via sono puramente indicative. L'indirizzo esatto sarà fornito previo colloquio in agenzia.
**Le presenti informazioni non costituiscono elemento contrattuale.
Caratteristiche
Codice:
T185
Città:
Rimini (Viserba)
Categoria:
Appartamento
Locali:
3
Camere:
2
Bagni:
2
Mq:
73,09
Terrazzi:
1
Piano:
1
Anno:
2026
Classe energetica:
A4
Stato Immobile:
Prossima Realizzazione
Grado:
Signorile
Posizione:
Mare
Panorama:
Vista Aperta
Tipo Soggiorno:
Soggiorno
Tipo Cucina:
A Vista
Riscaldamento:
Tele Riscaldamento
Tipo Riscaldam.:
Pompa di Calore
Tipo Impianto:
Pavimento
Fonte Energetica:
Fotovoltaico
Acqua Calda:
Autonoma
Raffrescamento:
Split
Infissi:
PVC Triplo Vetro
Accessori
Aria Condizionata
Ascensore
Bagno Handicap
Cancello Elettrico
ImpiantoFotovoltaico
Passaggio Automobilistico
Passaggio Pedonale
Porta Blindata
Tapparelle Elettriche
Tripli Vetri
Video Citofono
Mappa
Rimini (Viserba) - via sacco e vanzetti
Attiva i cookies e ricarica la pagina per visualizzare il contenuto
Cookie preference