In Vendita

Ampio appartamento Trilocale ristrutturato centro storico

Rimini (Centro storico) - VIA TEMPIO MALATESTIANO
Codice: T245
370.000 €
95 m²
Superficie
3
Locali
2
Bagni
Descrizione
T245 RIMINI - Trilocale completamente ristrutturato dal design contemporaneo in palazzo signorile in pieno centro storico tra Piazza Tre Martiri e il Tempio Malatestiano.
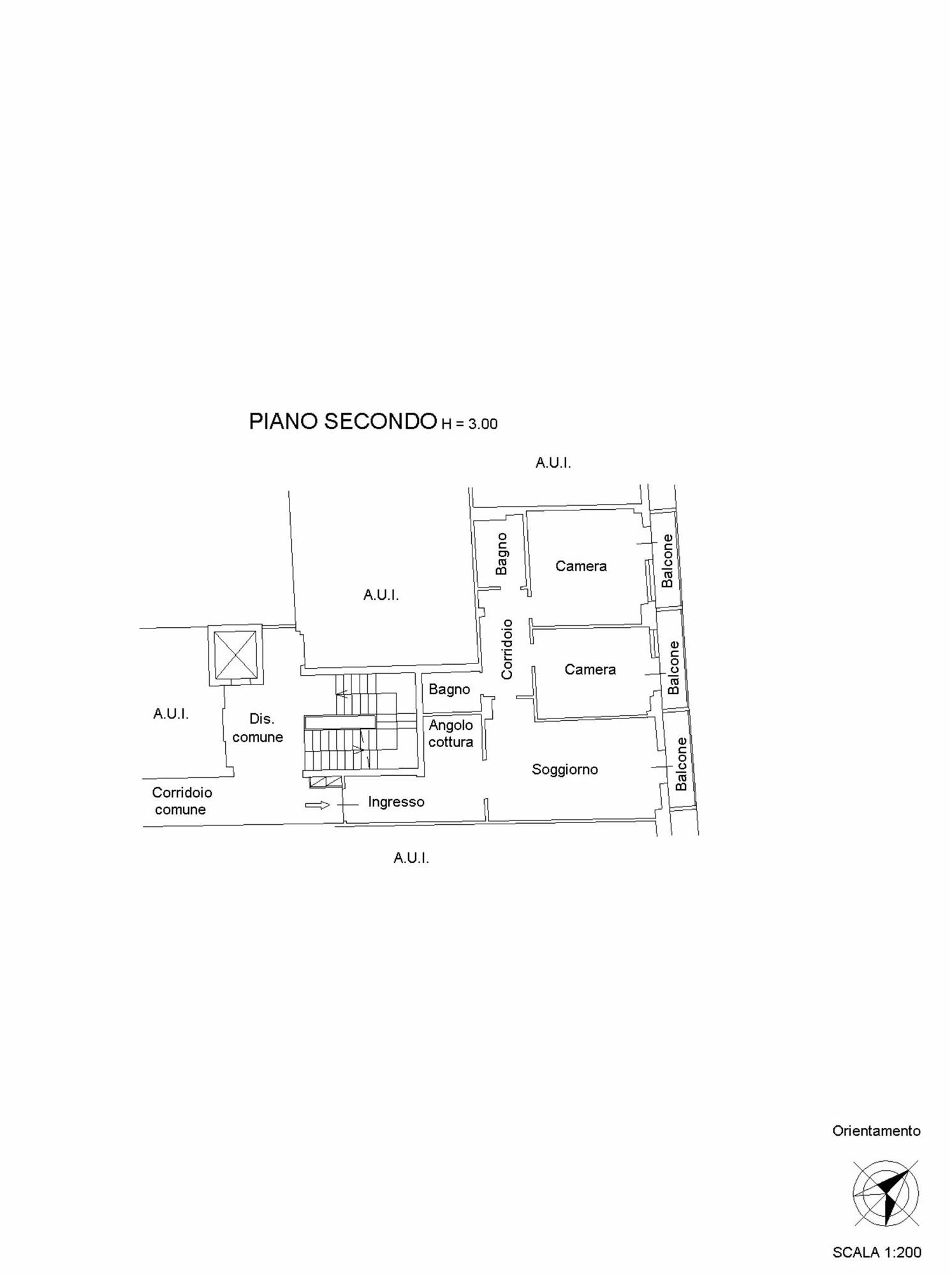
L'appartamento al secondo piano servito da ascensore coniuga il fascino del centro con alti standard tecnologici. Situato al secondo piano e servito da ascensore, l'immobile è luminoso e caldo progettato con un taglio moderno e razionale.

La zona Living si presenta con ampio soggiorno luminoso con affaccio su balcone e angolo cottura in nicchia funzionale e perfettamente integrato nel design della zona giorno.

La zona notte si raggiunge tramite comodo disimpegno che conduce alle DUE camere dalle metrature generose di 14 mq e 17 mq praticamente introvabili nelle ristrutturazioni moderne. Entrambe le camere hanno affaccio su balconi.

I servizi sono due, entrambi con comode docce walk-in. Presente anche una nicchia per la lavanderia sapientemente nascosta in comodo ripostiglio con porte scorrevoli.

L'appartamento è stato oggetto di una riqualificazione totale con:
- Infissi in PVC con vetro-camera, isolamento dei cassonetti, tapparelle elettriche e climatizzazione in ogni ambiente.

- Riscaldamento centralizzato con caldaia di ultimissima generazione (bassissimi consumi) e boiler (200 litri) con pompa di calore per l'acqua calda.

- Novi impianti idrici ed elettrici (BTicino), videocitofono e cablaggio internet in ogni stanza, predisposizione per piano cottura ad induzione.

Deposito biciclette condominiale.



Caratteristiche
Codice:
T245
Città:
Rimini (Centro storico)
Categoria:
Appartamento
Spese condominiali:
1.500 € / anno
Locali:
3
Bagni:
2
Mq:
95
Mq calpestabili:
92
Balconi:
3
Piano:
2
Anno:
1963
Anno ristrutturazione:
2025
Classe energetica:
C
Stato Immobile:
Ristrutturato
Grado:
Signorile
Posizione:
Centro Storico
Orientamento:
Nord Est
Lati Liberi:
1
Arredi:
Non Arredato
Tipo Soggiorno:
Soggiorno
Tipo Cucina:
Cucinotto
Riscaldamento:
Centralizzato
Tipo Impianto:
Radiatori
Fonte Energetica:
Metano
Acqua Calda:
Centralizzata
Raffrescamento:
Split
Infissi:
PVC Triplo Vetro
Serramenti:
Nuovo
Pavim. Giorno:
Gres Porcellanato
Pavim. Notte:
Gres Porcellanato
Pavim. Cucina:
Gres Porcellanato
Pavim. Bagno:
Gres Porcellanato
Accesso Disabili:
Nessuna Barriera
Accesso interno disabili:
Pieno accesso
Accessori
Aria Condizionata
Ascensore
Passaggio Pedonale
Porta Blindata
Rete Dati
Ripostiglio
Tapparelle Elettriche
Tripli Vetri
Video Citofono
Mappa
Rimini (Centro storico) - VIA TEMPIO MALATESTIANO
Attiva i cookies e ricarica la pagina per visualizzare il contenuto
Cookie preference